These are complete plans. For ECO 62 Study plans, click HERE
To have fun on the water a houseboat is a practical solution. The exist already in all possible shapes. Many more house as boat, others more boat as house. Here a bit an other approach. The ECO 62 is a catamaran houseboat. Compared to houseboats of the same size the boat is light and a bit more boat as house.
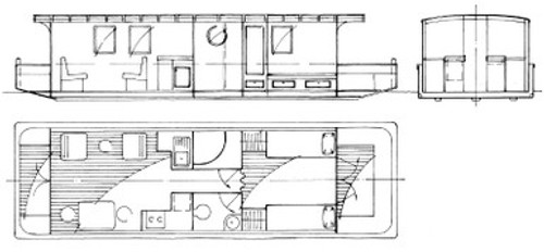
The load capacity is higher as its own weight ( empty weight 410 kg load capacity 480 kg). By placing a double berth transverse at the bow much room is gained for the saloon. Good accommodation is paramount in my view on a houseboat. A big open saloon, a good sized cockpit for socializing also. The saloon and the cockpit are at the same level. The standing headroom is over the whole length of the interior 1,94 m (6 feet, 5 inch).The empty weight of about 410 kg is not much for a craft of this size with this lot of accommodation. A bonus of the low weight is that the craft can be trailered behind a modest sized car.
The bench can be used as an other double berth at night. A fair sized bathroom is an other asset and nice to have.
The cabin sits on the top of the hulls. So the hulls are basically empty. There is sufficient space for water tanks till 200 liter. Brown water tanks from the toilet and pantry. Batteries for electric drive(s): Of course closed cell batteries have to be used.
If a gas cooker is used the bottle can be placed direct underneath the pantry with ventilation openings at the side of the deck house far above the water line. The hulls have 1400 liter volume for floatation, so the craft can not sink.
Construction is the proven and easy to learn wood/glass/Epoxy composite construction system. The design is on 5 bulkheads and wooden stringers. Easy to learn also for a novice in boat building. As mentioned the craft is light. A hull weights around 50 kg when finished. So turning the finished hulls can be if need be done by one person. Building up the bridge deck is the same. The bridge deck is build up from 12 mm plywood. A 12 mm plywood panel weights typical 18,3 kg. So can be handled by one person to. By the way all other plywood used is 6 and 4 mm plywood. Laminated together where need. Example: Keel to chine is build up from two layers of 6mm plywood.
The hulls slide easy and effortless through the water. So not much power is needed to propel the boat. Powering the boat depends where the boat is used. The boat can be powered for instance with small electric trolling motors. Example: One at the bow two at the transom. The will have 150 pound of trust good for about 8 km per hour. This is the speed limit on
many channels and recreation resorts.
Or on each transom an outboard with about 20 HP. This would be good for around 20 knots. A bit fast, all the cutlery will jump in the cabinets.

My favorite drive for this craft is the surface piercing drive, with a 15 HP engine. If you search careful the complete drive will cost about US $ 900,00. In this configuration the boat will give you about 12 knots of speed. The engine is a two cylinder four stroke engine, air cooled. But with a foam lined cover the high wining noise of the fan cooling can be diminished by 80 %. So the engine would be not more noisy as two outboard engines.

Surface piercing drives are also known as mud drives. For maneuvering in a port I would add an electric trolling motor at the bows.
The development of new houseboats is almost standing still. So here some new and a bit unconventional ideas to change that.
Maisons 04/20/2015
B. Kohler
K-designs
France
| Specifications | ||
| L.o.a. | - | 6.20 m |
| Beam | - | 2.5 m |
| Draft | - | 0.23 m |
| Weight | - | 410 kg |
| Weight max. CWL | - | 890 kg |
| Power | - | Variable |

